Chúng tôi chuyên sản xuất tất cả các loại bình nén khí, bình áp lực theo tiêu chuẩn Việt Nam TCVN 8366:2010, 6008:2010, 6008/1995, TCVN 7472-2005, QCVN: 01-2008/BLĐTBXH, dung tích lên đến 50,000 lít, áp suất lên đến 50 bar.
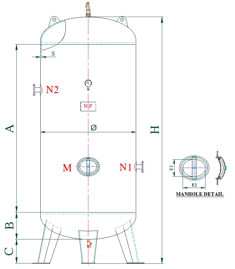
Loại Bình (Tanks) (LÍT) | (Main Sizes) CÁC KÍCH THƯỚC CHÍNH (mm) | P max (kg/cm2) |
Ø | A | B | C | H | S | CỬA VỆ SINH (Manhole) E1 x E2 | ỐNG VÀO (In pipe) N1 | ỐNG RA (Out pipe) N2 |
300 | Ø 480 | 1500 | 120 | 150 | 1890 | 4 | Không áp dụng (N/A) | M34 | M34 | 10 |
500 | Ø 600 | 1500 | 140 | 150 | 1930 | 5 | M49 | M49 | 10 |
700 | Ø 700 | 1500 | 140 | 150 | 1930 | 5.5 | M49 | M49 | 10 |
1000 | Ø 850 | 1500 | 210 | 170 | 2090 | 6.5 | 150 x 190 | M49 | M49 | 10 |
1260 | Ø 965 | 1500 | 270 | 170 | 2210 | 8 | 150 x 190 | M49 | M49 | 10 |
1500 | Ø 1050 | 1500 | 240 | 200 | 2180 | 8 | 150 x 190 | M60 | M60 | 10 |
2000 | Ø 1050 | 2000 | 240 | 200 | 2680 | 8 | 150 x 190 | M60 | M60 | 10 |
3000 | Ø 1250 | 2000 | 320 | 200 | 2840 | 10 | 330 x 430 | 80A | 80A | 10 |
4000 | Ø 1450 | 2000 | 380 | 250 | 3010 | 10 | 330 x 430 | 100A | 100A | 10 |
5000 | Ø 1600 | 2000 | 400 | 300 | 3100 | 12 | 330 x 430 | 100A | 100A | 10 |
6000 | Ø 1600 | 2500 | 400 | 300 | 3600 | 12 | 330 x 430 | 100A | 100A | 10 |
8000 | Ø 1700 | 3000 | 460 | 300 | 4220 | 12 | 330 x 430 | 125A | 125A | 10 |
10000 | Ø 1920 | 2750 | 500 | 300 | 4050 | 14 | 330 x 430 | 150A | 150A | 10 |
Ghi chú:
1. M-- (M21) là ký hiệu cho ống tiện ren (măng sông).
2. A-- (80A) là ký hiệu dạng mặt bích (Tiêu chuẩn JIS 10K)

Bình được sơn Epoxy chống sét rỉ bên trong và sơn tĩnh điện trang trí bên ngoài, ngoài ra có đầy đủ các phụ kiện kèm theo gồm:
- Van an toàn.
- Van bi xả đáy.
- Áp kế.
Bình có đầy đủ hồ sơ đăng kiểm và lý lịch kiểm tra xuất xưởng theo quy định.
Đặc điểm kỹ thuật của Bình nén khí loại đứng:
Thông số kỹ thuật Bình khí nén | Tiêu chuẩn |
Tiêu chuẩn thiết kế, chế tạo | TCVN 8366:2010 ; 6008:2010 |
Tiêu chuẩn thử nghiệm | TCVN 6154: 1996 |
Đặc điểm cấu tạo | Thân trụ, hai đáy cong dạng elíp, đặt đứng hoặc nằm. |
Vật liệu | Thép tấm SS400/ CT3 / Inox 304 ( hoặc vật liệu khác theo yêu cầu). |
Áp suất thiết kế | 10 kg/cm2, (hoặc mức áp suất khác theo yêu cầu). |
Áp suất làm việc | 08 kg/cm2, (hoặc mức áp suất khác theo yêu cầu). |
Môi chất: | Không khí nén hoặc nước. |
Đặc tính | Không độc. |
Nhiệt độ tối đa | 100 oC. |
Chi tiết bắt chặt trên thân bình: | Ống thép hàn dính trên thân. |
Ống khí vào | Số lượng 1, ( hoặc nhiều hơn theo yêu cầu). |
Ống khí ra | Số lượng 1, ( hoặc nhiều hơn theo yêu cầu). |
Ống van an toàn | Số lượng 1. |
Ống xả đáy | Số lượng 1. |
Ống áp kế | Số lượng 1. |
Ống người chui | Số lượng 1. |
Công nghệ hàn: | Hàn hồ quang chìm SAW.
|